2021年6月17日,化学所昌平中试基地文体中心装修改造工程竣工验收会在昌平基地会议室召开。副所长黄仁权、工会常务副主席李静及相关职能部门负责人、监理单位、设计单位、施工单位、造价咨询单位的相关人员参加了验收会。
验收组认真查看了工程建设质量,审查了工程档案资料。建设单位、施工单位、监理单位、设计单位分别对工程建设情况、质量评估检查情况作了汇报。参建各方一致认为昌平中试基地文体中心装修改造工程顺利完成了建设内容,质量良好,管理规范,资料齐全,一致同意该项目通过竣工验收。
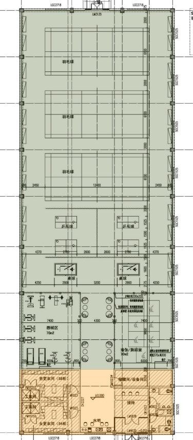
昌平中试基地文体中心由原昌平基地的西大库改造而成,按照健身场地标准进行设计施工,地面采用专用运动地板,新增空调系统、照明系统、内外保温等,并进行了结构加固。设有3块羽毛球场地、4个兵乓球台、2个桌球、70平方米舞蹈区、70平方米器械区等,另设置了水吧、男女更衣室、储藏间、卫生间等。
黄仁权代表验收组宣布昌平中试基地文体中心装修改造工程通过竣工验收,对各参加单位的付出表示衷心感谢,他说,该项目的建成和投入使用,将为化学所的职工和学生提供环境良好、功能较齐全的健身场所,将成为化学所创新文化建设的重要基地。






